Produse Noi
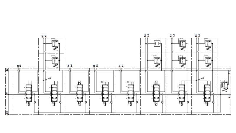
VANĂ HIDRAULICĂ HIAB 8XPC70 + 2X JOYSTICK - CONTROL ELECTRIC 12V

Descriere generală:
Vana hidraulică manuală sau mecanică РC70 este concepută pentru distribuția și controlul fluxului de lucru între pompa hidraulică și cilindrii hidraulici.
Vana hidraulică este utilizată pentru remorci forestiere – (HIAB).
Asamblată într-un bloc de 8 segmente.
Funcționare:
Toate vanele hidraulice sunt echipate cu o vană de siguranță. În poziția neutră (levierul în mijloc), uleiul circulă prin vană. Când levierul este mutat într-o parte sau alta, vana hidraulică determină mișcarea cilindrului sau rotirea motorului hidraulic într-o direcție sau alta. La eliberarea levierului, acesta revine automat în poziția neutră, motorul hidraulic sau cilindrul se oprește în poziția curentă, iar uleiul circulă din nou prin vană. Este posibil să se utilizeze un element denumit 'centru închis', care schimbă vana astfel încât în poziția neutră uleiul să nu circule prin vană sau o astfel de vană să nu mai curgă. Când se utilizează sau se conectează alte vani, este necesar să se utilizeze un element 'carry over', care permite alimentarea cu ulei pentru alte vani.
Pentru vanele cu axuri pentru funcția de flotare, permite cilindrului un flux liber de ulei, ceea ce înseamnă că cilindrul se mișcă liber (sau lama de zăpadă se adaptează la teren).
Vanele cu axuri pentru cilindri cu acțiune simplă sunt destinate cilindrilor cu acțiune simplă.
Construcție:
РC70 este o vană de distribuție monobloc. Este fabricată din fontă EN-GJL300. Axurile sunt fabricate din oțel carbon și sunt placate cu crom dur.
Conexiuni:
Axul este prins cu două șuruburi M10.











