Nye produkter
HYDRAULISK RVBR AUTOMATISK VENTIL TIL FJEDERCYLINDER MED RESERVOIR OG NØDHÅNDTAG 206613

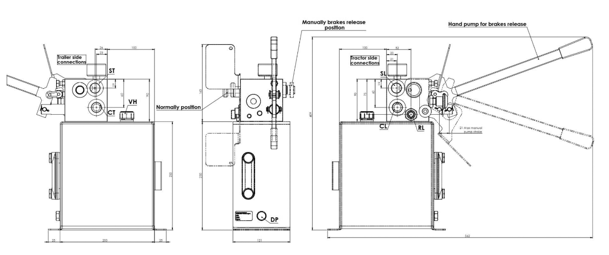
Forbindelser:
CL | 'kontrollinje' = kontrolna linija | Side af traktoren | M22x1.5 DIN 3852-1 X |
SL | 'supplerende linje' = dodatna linija | M22x1.5 DIN 3852-1 X | |
RL | 'returlinje' = povratna linija | M18x1.5 ISO 6149 | |
CT | 'kontrollinje' = kontrolna linija | Side af traileren | M22x1.5 DIN 3852-1 X |
ST | 'supplerende linje' = dodatna linija | M22x1.5 DIN 3852-1 X | |
VH | 'ventilationshul' = odzračevalna odprtina / čep za polnjenje | ||
DP | 'drænhul' = čep za odtok |
Brug begrænsninger:
Max. tryk på CL forbindelse | 160 bar |
Max. tryk på SL forbindelse | 50 bar |
Hydraulisk væske | Hydraulikolie DIN 515524 |
Viskositetsgrad | 10/380 cSt |
Filtreringsniveau | NAS 1638 KLASSE 9 |
Temperatur | -20/+90°C |
Beskrivelse:
'HYDRAULISK RVBR AUTOMATISK VENTIL TIL FJEDERCYLINDER MED RESERVOIR OG NØDHÅNDTAG 206613' - hovedfunktioner og brugsanvisninger:
- Under kørsel har enheden ingen funktion:
- Tilsluttede linjer CL og CT
- Tilsluttede linjer SL og ST - Stempel lås til isolering af ST linje og manuel pumpe til manuel frigivelse af ST linje af cylinder SAHR og nødbevægelse selv i tilfælde af adskilt traktor
- Automatisk genindkobling af stempel lås i tilfælde af trykstigning på SL linje
- Mechaniske sikkerhedsindikatorer, der angiver mulig frigivelse af nød- og parkeringsbremse
- Reservoir til manuel oplåsning af cylinder SAHR og til at holde olie i tilfælde af at tryk to-linje kobling SL ved et uheld adskilles
- Manuel enhed til lettelse af linje CL
![]() | ![]() |
![]() | ![]() |












